Descrizione
MM BISCEGLIE – VIA DELLE FORZE ARMATE 333 – BILOCALE ULTIMO PIANO
L’agenzia immobiliare Bonola Case propone in vendita, adiacente al Parco delle Cave ed a pochi passi della metropolitana Bisceglie, panoramico bilocale, di 54 mq c.a., sito al settimo e ultimo piano con ascensore.
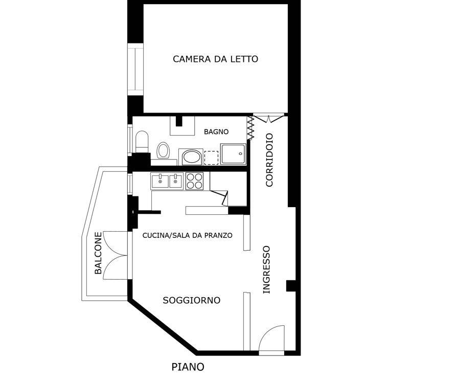
L’unità abitativa è così composta: ingresso, ampio luminoso soggiorno con accesso al balcone, cucina a vista, camera da letto matrimoniale e bagno.
La soluzione abitativa si presenta in ottime condizioni interne. Tra le finiture e dotazioni segnaliamo pavimento in ceramica di alta qualità in tutta la casa, serramenti in doppio vetro che conferiscono alla soluzione abitativa un gradevolissimo comfort termico e acustico e porta blindata.
L’immobile è dotato di un sistema di riscaldamento dell’alloggio e dell’acqua sanitaria centralizzata con sistema di contabilizzazione dei consumi. Impianto d’aria condizionata sia in soggiorno che in camera da letto.
Valore aggiunto di questa proposta è la tranquillità che contraddistingue il quartiere; negozi al dettaglio di prima necessità a portata di mano, collegamenti rapidi con il centro città grazie alla metro MM1.
Da non perdere!
APE: Classe energetica ‘E’ – 208.99 kWh/m2a
Per visionare l’immobile e fissare un appuntamento potete contattarci al numero 02-3084996; numerose altre proposte vi aspettano sul nostro sito www.bonolacase.it.
Se desiderate una valutazione qualificata, dettagliata e realistica della Vostra casa, non esitate a contattare Bonola Case Servizi Immobiliari. Saremo lieti di offrirvi questo servizio gratuitamente mediante il supporto dei nostri consulenti immobiliari.
Bonola Case srl – Servizi Immobiliari – sedi: Milano – Via Ugo Betti 40/a – Via Uruguay 16
Tel. 023084996 – 3346517942 info@bonolacase.it sito internet www.bonolacase.it
Planimetrie
A+
A
B
C
D
E
F
G
H












































